WATERFRONT DEVELOPMENT, SOUTHAMPTON

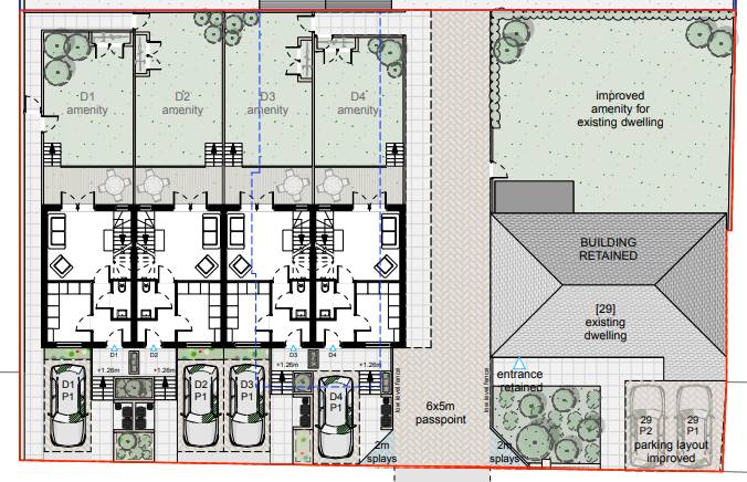
Outline Planning Permission was approved subject to Conditional Approval for x4 dwelling townhouses circa 77sqm/828sqft. The site is located to the east side of Southampton and has views across the River Itchen.

Land wanted in Hampshire & Surrounding Counties.

We are always searching for land with development potential across Hampshire, West Sussex and the South Coast. If you are considering selling your land, we have over 20 years’ experience to help you achieve the best value. We offer a free appraisal without obligation.